W dniu 25 sierpnia 2025 roku Burmistrz Miasta Nowy Targ ogłosił publiczne przetargi ustne nieograniczone (licytacje) na sprzedaż nieruchomości stanowiących własność Gminy Miasto Nowy Targ, oznaczonych jako:
1. LOKAL MIESZKALNY NR 2 w budynku wielomieszkaniowym przy UL. ŚW. SEBASTIANA 20 W KRAKOWIE, o pow. użytkowej 51,07 m2 (objęty księgą wieczystą nr KR1P/00271356/5) wraz z udziałem 268/10000 części w nieruchomości wspólnej stanowiącej grunt oznaczony jako działka ewid. nr 46 o pow. 0,0938 ha położona w jednostce ewid. Śródmieście, obręb S-3 oraz części budynku i urządzeń, które nie służą wyłącznie do użytku właścicieli lokali.
CENA WYWOŁAWCZA to 950 000,00 zł (słownie: dziewięćset pięćdziesiąt tysięcy złotych 00/100), zgodnie z art. 43 ust. 1 pkt 10 ustawy z dnia 11 marca 2004 r. o podatku od towarów i usług sprzedaż zwolniona jest z podatku VAT.
Przetarg odbędzie się w dniu 29 października 2025 r. (środa) o godz. 10:00 w budynku Urzędu Miasta w Nowym Targu przy ul. Krzywej 1, sala nr 020, parter.
Wadium w pieniądzu w wysokości 95 000,00 zł (słownie: dziewięćdziesiąt pięć tysięcy złotych 00/100) winno znaleźć się na koncie Urzędu Miasta w Nowym Targu w Banku Pekao S.A. I Oddział w Nowym Targu nr: 45 1240 1574 1111 0010 2422 2171 najpóźniej w dniu 24 października 2025 r. (piątek).
Osoby zainteresowane nabyciem lokalu mogą go obejrzeć w dniu 17 października 2025 r. w godz. 10:00 – 12:00, po uprzednim ustaleniu terminu telefonicznie pod nr 18 26 11 284 lub 18 26 11 274.
Ogłoszenie wraz z regulaminem przetargu dostępne są pod linkiem: http://bip.nowytarg.pl/6622/dokument/11441
2. LOKAL MIESZKALNY NR 6 w budynku wielomieszkaniowym przy UL. JÓZEFA DIETLA 69 W KRAKOWIE, o pow. użytkowej 42,79 m2 (objęty księgą wieczystą nr KR1P/00203254/3) wraz z udziałem 4279/89297 części w nieruchomości wspólnej stanowiącej grunt oznaczony jako działka ewid. nr 64 o pow. 0,0302 ha położona w jednostce ewid. Śródmieście, obręb S-11 oraz części budynku i urządzeń, które nie służą wyłącznie do użytku właścicieli lokali.
CENA WYWOŁAWCZA to 720 000,00 zł (słownie: siedemset dwadzieścia tysięcy złotych 00/100), zgodnie z art. 43 ust. 1 pkt 10 ustawy z dnia 11 marca 2004 r. o podatku od towarów i usług sprzedaż zwolniona jest z podatku VAT.
Przetarg odbędzie się w dniu 29 października 2025 r. (środa) o godz. 13:00 w budynku Urzędu Miasta w Nowym Targu przy ul. Krzywej 1, sala nr 020, parter.
Wadium w pieniądzu w wysokości 72 000,00 zł (słownie: siedemdziesiąt dwa tysiące złotych 00/100) winno znaleźć się na koncie Urzędu Miasta w Nowym Targu w Banku Pekao S.A. I Oddział w Nowym Targu nr: 45 1240 1574 1111 0010 2422 2171 najpóźniej w dniu 24 października 2025 r. (piątek).
Osoby zainteresowane nabyciem lokalu mogą go obejrzeć w dniu 17 października 2025 r. w godz. 13:00 – 15:00, po uprzednim ustaleniu terminu telefonicznie pod nr 18 26 11 284 lub 18 26 11 274.
Ogłoszenie wraz z regulaminem przetargu dostępne są pod linkiem: http://bip.nowytarg.pl/6622/dokument/11446
3. LOKAL MIESZKALNY NR 14A w budynku wielomieszkaniowym przy AL. JULIUSZA SŁOWACKIEGO 50 W KRAKOWIE, o pow. użytkowej 48,53 m2 (objęty księgą wieczystą nr KR1P/00548695/6) wraz z udziałem 39/1000 części w nieruchomości wspólnej stanowiącej grunt oznaczony jako działka ewid. nr 302/1 o pow. 0,0366 ha położona w jednostce ewid. Krowodrza, obręb K-46 oraz części budynku i urządzeń, które nie służą wyłącznie do użytku właścicieli lokali.
CENA WYWOŁAWCZA to 810 000,00 zł (słownie: osiemset dziesięć tysięcy złotych 00/100), zgodnie z art. 43 ust. 1 pkt 10 ustawy z dnia 11 marca 2004 r. o podatku od towarów i usług sprzedaż zwolniona jest z podatku VAT.
Przetarg odbędzie się w dniu 30 października 2025 r. (czwartek) o godz. 10:00 w budynku Urzędu Miasta w Nowym Targu przy ul. Krzywej 1, sala nr 020, parter.
Wadium w pieniądzu w wysokości 81 000,00 zł (słownie: osiemdziesiąt jeden tysięcy złotych 00/100) winno znaleźć się na koncie Urzędu Miasta w Nowym Targu w Banku Pekao S.A. I Oddział w Nowym Targu nr: 45 1240 1574 1111 0010 2422 2171 najpóźniej w dniu 24 października 2025 r. (piątek).
Osoby zainteresowane nabyciem lokalu mogą go obejrzeć w dniu 17 października 2025 r. w godz. 16:00 – 18:00, po uprzednim ustaleniu terminu telefonicznie pod nr 18 26 11 284 lub 18 26 11 274.
Ogłoszenie wraz z regulaminem przetargu dostępne są pod linkiem: http://bip.nowytarg.pl/6622/dokument/11451
4. LOKAL MIESZKALNY NR 7A w budynku wielomieszkaniowym przy UL. MAZOWIECKIEJ 11 W KRAKOWIE, o pow. użytkowej 25,55 m2 (objęty księgą wieczystą nr KR1P/00569206/5) wraz z udziałem 2555/91598 części w nieruchomości wspólnej stanowiącej grunt oznaczony jako działka ewid. nr 284/2 o pow. 0,0267 ha położona w jednostce ewid. Krowodrza, obręb K-46 oraz części budynku i urządzeń, które nie służą wyłącznie do użytku właścicieli lokali.
CENA WYWOŁAWCZA to 470 000,00 zł (słownie: czterysta siedemdziesiąt tysięcy złotych 00/100), zgodnie z art. 43 ust. 1 pkt 10 ustawy z dnia 11 marca 2004 r. o podatku od towarów i usług sprzedaż zwolniona jest z podatku VAT.
Przetarg odbędzie się w dniu 31 października 2025 r. (piątek) o godz. 10:00 w budynku Urzędu Miasta w Nowym Targu przy ul. Krzywej 1, sala nr 020, parter.
Wadium w pieniądzu w wysokości 47 000,00 zł (słownie: czterdzieści siedem tysięcy złotych 00/100) winno znaleźć się na koncie Urzędu Miasta w Nowym Targu w Banku Pekao S.A. I Oddział w Nowym Targu nr: 45 1240 1574 1111 0010 2422 2171 najpóźniej w dniu 24 października 2025 r. (piątek).
Osoby zainteresowane nabyciem lokalu mogą go obejrzeć w dniu 16 października 2025 r. w godz. 9:00 – 11:00, po uprzednim ustaleniu terminu telefonicznie pod nr 18 26 11 284 lub 18 26 11 274.
Ogłoszenie wraz z regulaminem przetargu dostępne są pod linkiem: http://bip.nowytarg.pl/6622/dokument/11461
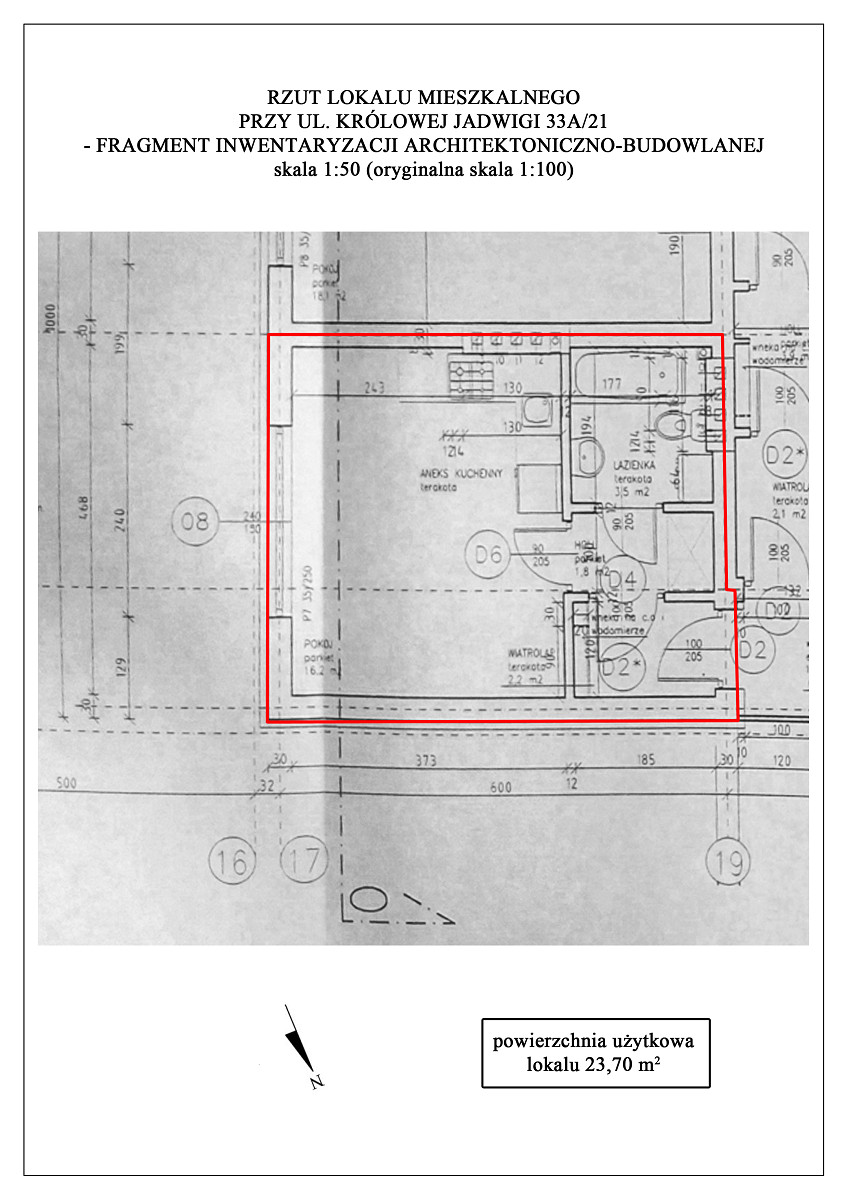
5. LOKAL MIESZKALNY NR 21 w budynku wielomieszkaniowym przy UL. KRÓLOWEJ JADWIGI 33A W KRAKOWIE, o pow. użytkowej 23,70 m2 (objęty księgą wieczystą nr KR1P/00544285/1) wraz z udziałem 280/10000 części w nieruchomości wspólnej stanowiącej grunt oznaczony jako działka ewid. nr 38/12 o pow. 0,0978 ha położona w jednostce ewid. Krowodrza, obręb K-13 oraz części budynku i urządzeń, które nie służą wyłącznie do użytku właścicieli lokali.
CENA WYWOŁAWCZA to 440 000,00 zł (słownie: czterysta czterdzieści tysięcy złotych 00/100), zgodnie z art. 43 ust. 1 pkt 10 ustawy z dnia 11 marca 2004 r. o podatku od towarów i usług sprzedaż zwolniona jest z podatku VAT.
Przetarg odbędzie się w dniu 31 października 2025 r. (piątek) o godz. 12:30 w budynku Urzędu Miasta w Nowym Targu przy ul. Krzywej 1, sala nr 020, parter.
Wadium w pieniądzu w wysokości 44 000,00 zł (słownie: czterdzieści cztery tysiące złotych 00/100) winno znaleźć się na koncie Urzędu Miasta w Nowym Targu w Banku Pekao S.A. I Oddział w Nowym Targu nr: 45 1240 1574 1111 0010 2422 2171 najpóźniej w dniu 24 października 2025 r. (piątek).
Osoby zainteresowane nabyciem lokalu mogą go obejrzeć w dniu 16 października 2025 r. w godz. 15:00 – 17:00, po uprzednim ustaleniu terminu telefonicznie pod nr 18 26 11 284 lub 18 26 11 274.
Ogłoszenie wraz z regulaminem przetargu dostępne są pod linkiem: http://bip.nowytarg.pl/6622/dokument/11466
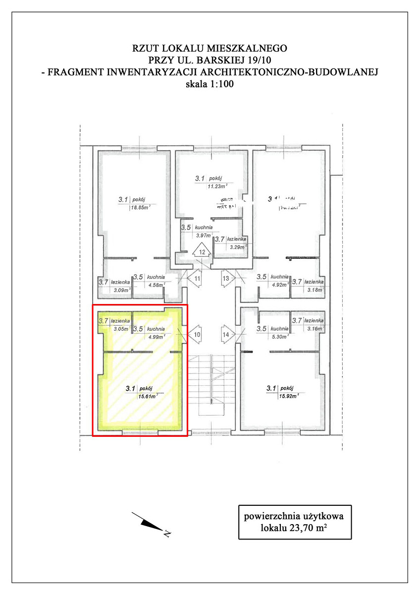
6. LOKAL MIESZKALNY NR 10 w budynku wielomieszkaniowym przy UL. BARSKIEJ 19 W KRAKOWIE, o pow. użytkowej 23,70 m2 z pomieszczeniem przynależnym – piwnicą o pow. 2,40 m2 (objęty księgą wieczystą nr KR1P/00209952/8) wraz z udziałem 261/6690 części w nieruchomości wspólnej stanowiącej grunt oznaczony jako działka ewid. nr 320/1 o pow. 0,0340 ha położona w jednostce ewid. Podgórze, obręb P-10 oraz części budynku i urządzeń, które nie służą wyłącznie do użytku właścicieli lokali.
CENA WYWOŁAWCZA to 440 000,00 zł (słownie: czterysta czterdzieści tysięcy złotych 00/100), zgodnie z art. 43 ust. 1 pkt 10 ustawy z dnia 11 marca 2004 r. o podatku od towarów i usług sprzedaż zwolniona jest z podatku VAT.
Przetarg odbędzie się w dniu 31 października 2025 r. (piątek) o godz. 14:30 w budynku Urzędu Miasta w Nowym Targu przy ul. Krzywej 1, sala nr 020, parter.
Wadium w pieniądzu w wysokości 44 000,00 zł (słownie: czterdzieści cztery tysiące złotych 00/100) winno znaleźć się na koncie Urzędu Miasta w Nowym Targu w Banku Pekao S.A. I Oddział w Nowym Targu nr: 45 1240 1574 1111 0010 2422 2171 najpóźniej w dniu 24 października 2025 r. (piątek).
Osoby zainteresowane nabyciem lokalu mogą go obejrzeć w dniu 16 października 2025 r. w godz. 18:00 – 20:00, po uprzednim ustaleniu terminu telefonicznie pod nr 18 26 11 284 lub 18 26 11 274.
Ogłoszenie wraz z regulaminem przetargu dostępne są pod linkiem: https://bip.nowytarg.pl/6622/dokument/11471
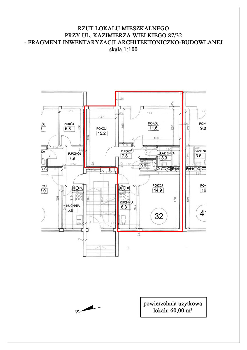
7. LOKAL MIESZKALNY NR 32 w budynku wielomieszkaniowym przy UL. KAZIMIERZA WIELKIEGO 87 W KRAKOWIE, o pow. użytkowej 60,00 m2 z pomieszczeniem przynależnym – piwnicą o pow. 2,60 m2 (objęty księgą wieczystą nr KR1P/00694943/8) wraz z udziałem 626/40793 części w nieruchomości wspólnej stanowiącej grunt oznaczony jako działka ewid. nr 552/4 o pow. 0,4119 ha położona w jednostce ewid. Krowodrza, obręb K-3 oraz części budynku i urządzeń, które nie służą wyłącznie do użytku właścicieli lokali.
CENA WYWOŁAWCZA to 920 000,00 zł (słownie: dziewięćset dwadzieścia tysięcy złotych 00/100), zgodnie z art. 43 ust. 1 pkt 10 ustawy z dnia 11 marca 2004 r. o podatku od towarów i usług sprzedaż zwolniona jest z podatku VAT.
Przetarg odbędzie się w dniu 30 października 2025 r. (czwartek) o godz. 13:00 w budynku Urzędu Miasta w Nowym Targu przy ul. Krzywej 1, sala nr 020, parter.
Wadium w pieniądzu w wysokości 92 000,00 zł (słownie: dziewięćdziesiąt dwa tysiące złotych 00/100) winno znaleźć się na koncie Urzędu Miasta w Nowym Targu w Banku Pekao S.A. I Oddział w Nowym Targu nr: 45 1240 1574 1111 0010 2422 2171 najpóźniej w dniu 24 października 2025 r. (piątek).
Osoby zainteresowane nabyciem lokalu mogą go obejrzeć w dniu 16 października 2025 r. w godz. 12:00 – 14:00, po uprzednim ustaleniu terminu telefonicznie pod nr 18 26 11 284 lub 18 26 11 274.
Ogłoszenie wraz z regulaminem przetargu dostępne są pod linkiem: https://bip.nowytarg.pl/6622/dokument/11456
Podobne wiadomości
